+359 896 162 777 office@novvek.bg

гр. Варна, ул. София 3 Работно време: 9:00 - 18:00

Продава Къща КОД: 179

Нова, просторна къща с двор в м-т Горна Трака, Варна

€ 380,000 / € 1,727.27 на м2 /

Къща Тип

Етаж 0 от 0 етажа

0 Спални

0 м2 Чиста площ

220 м2 Обща площ

€ 1,727.27 Цена м2

€ 380,000 Цена

  • Код: 179
  • Статус: Свободен
  • Град: Варна
  • Район: Траката
  • Строителство: Тухла
  • Година на строителство: 2027
  • Парцел: 220 м2

НОВ ВЕК недвижими имоти представя на вашето внимание просторна и функционално проектирана къща, разположена в предпочитаната местност Горна Трака, гр. Варна.

Имотът съчетава модерна визия, светли и удобни помещения, както и собствен двор – идеалното място за спокоен и уютен семеен живот.

Къщата се предлага в завършен вид по БДС стандарт.

При желание, може да бъде реализиран готов индивидуален интериорен проект, или да бъде направен нов.

Разпределение:

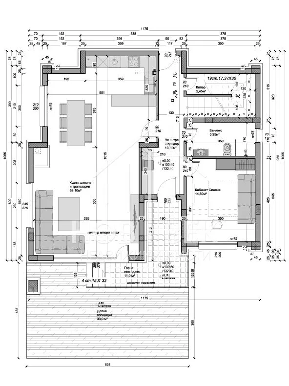
🔹 Първи етаж:

– Входно антре (13,70 кв.м)

– Просторен дневен тракт с кухненски кът (53,10 кв.м)

– Баня с WC (5,95 кв.м)

– Килер (2,45 кв.м)

– Кабинет / спалня (14,80 кв.м)

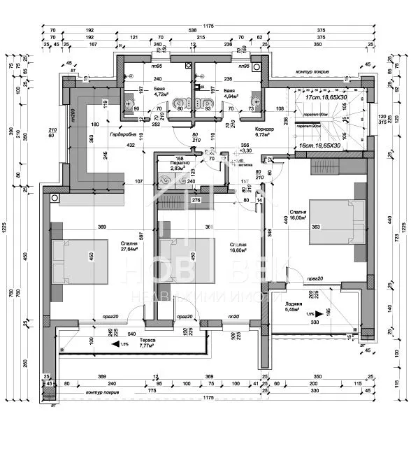
🔹 Втори етаж:

– Родителска спалня (27,64 кв.м) с гардеробна, собствена баня с WC (4,72 кв.м) и тераса (7,77 кв.м)

– Втора спалня (16,60 кв.м)

– Трета спалня (16,00 кв.м) с лоджия (5,45 кв.м)

– Баня с WC (4,64 кв.м)

– Перално помещение (2,83 кв.м)

– Коридор (6,73 кв.м)

✅ Тиха и зелена локация

✅ Отличен достъп

✅ Простор и функционалност

✅ Подходяща за целогодишно обитаване

📞 За повече информация и оглед:

Валентин Динев – Нов Век Нови Възможности

+359 882 853 331

Код на оферта: 179

Нова, просторна къща с двор в м-т Горна Трака, Варна
Продава

Нова, просторна къща с двор в м-т Горна Трака, Варна

Къща КОД: 179

€ 380,000 / € 1,727.27 на м2 /

Варна Траката

Площ:
220 м2

Тип:
Къща

Етаж:
0

* Натискайки бутона “Изпращане” Вие се съгласявате с нашите Общи условия и Политиката за защита на личните данни.

Още имоти

Отдава под наем ЕКСКЛУЗИВНО

3-стаен

КОД: 723

€ 500 / € 8.33 на м2 /

Варна Цветен

Площ:
60 м2

Тип:
3-стаен

Етаж:
1 от 8

Продава

Къща

КОД: 722

€ 698,000 / € 2,492.86 на м2 /

Варна Аспарухово

Площ:
280 м2

Тип:
Къща

Продава

2-стаен

КОД: 719

€ 128,500 / € 2,294.64 на м2 /

Варна Владиславово

Площ:
56 м2

Тип:
2-стаен

Етаж:
7 от 9

Продава ЕКСКЛУЗИВНО

3-стаен

КОД: 718

€ 125,000 / € 1,315.79 на м2 /

Варна

Площ:
95 м2

Тип:
3-стаен

Етаж:
5 от 9

Продава ЕКСКЛУЗИВНО

2-стаен

КОД: 717

€ 90,000 / € 1,363.64 на м2 /

Варна

Площ:
66 м2

Тип:
2-стаен

Етаж:
5 от 9

Продава

4-стаен

КОД: 711

€ 375,000 / € 2,435.06 на м2 /

Варна, област м-т Кабакум

Площ:
154 м2

Тип:
4-стаен

Продава

3-стаен

КОД: 710

€ 159,900 / € 2,422.73 на м2 /

Варна Младост

Площ:
66 м2

Тип:
3-стаен

Етаж:
2 от 8

Продава

Сгради

КОД: 709

При запитване

Варна Изгрев

Площ:
8500 м2

Тип:
Сгради

Продава

3-стаен

КОД: 708

€ 175,000 / € 2,397.26 на м2 /

Варна Бриз

Площ:
73 м2

Тип:
3-стаен

Етаж:
3 от 9

Продава

2-стаен

КОД: 707

€ 155,000 / € 2,980.77 на м2 /

Варна Техникумите

Площ:
52 м2

Тип:
2-стаен

Отдава под наем ЕКСКЛУЗИВНО

2-стаен

КОД: 706

€ 480 / € 8.73 на м2 /

Варна Възраждане

Площ:
55 м2

Тип:
2-стаен

Етаж:
6 от 7

Научи за новите имоти преди да бъдат публикувани!

* Натискайки бутона “Абонирай ме” Вие се съгласявате с нашите Общи условия и Политиката за защита на личните данни, като ще получавате имейлки от Нов Дом на посочения имейл адрес