+359 896 162 777 office@novvek.bg

гр. Варна, ул. София 3 Работно време: 9:00 - 18:00

Продава Къща КОД: 485

Къща в м-т Евксиноград

€ 580,000 / € 1,657.14 на м2 /

Къща Тип

Етаж 0 от 0 етажа

0 Спални

0 м2 Чиста площ

350 м2 Обща площ

€ 1,657.14 Цена м2

€ 580,000 Цена

  • Код: 485
  • Статус: Свободен
  • Град: Варна
  • Район: м-т Евксиноград
  • Строителство: Тухла
  • Година на строителство: 2026
  • Парцел: 350 м2

Ние от НОВ ВЕК Недвижими имоти предлагаме на вашето внимание луксозна новострояща се къща с морска гледка, с модерна архитектура,южно изложение, асфалтов достъп до имота по ул. 14-та, на 700м до Резиденция Евксиноград , спирка и главен път Варна – Златни пясъци.

Къщата е присъединена към градската канализационна мрежа.

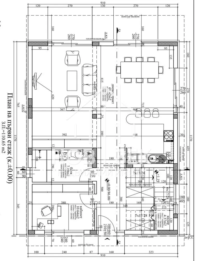
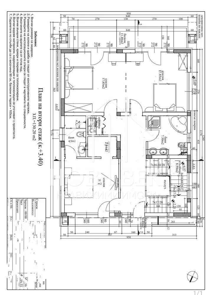
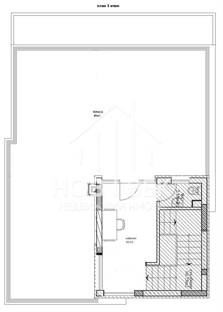
РЗП: 350 кв.м. и се състои от: –

Първи етаж 111 м2: просторен и слънчев дневен тракт с френски прозорци, баня с тоалетна, кабинет/спалня, стълбище към втори етаж.

Втори етаж 130 м2 : родителската спалня е със собствена баня , 2 детски спални , баня с тоалетна, перално помещение, тераса. – Трети етаж 109 м2: кабинет/cпалня, тоалетна, тераса 85м2 и прекрасна гледка към морето. Височина на тавана на 1 етаж е над 3 м . 2-4 паркомяста.

Водно подово отопление. Инсталация за термопомпа. Фасада с външна изолация.

Къщата се строи с най-висок клас строителни материали.

Дата на завършване по степен БДС е декември 2025г.

Има възможност за завършване до ключ, гараж и басейн.

Възможно преустройство спрямо предпочитанията на клиента!

За повече информация и оглед:

Валентин Динев +359882853331

Къща в м-т Евксиноград
Продава

Къща в м-т Евксиноград

Къща КОД: 485

€ 580,000 / € 1,657.14 на м2 /

Варна м-т Евксиноград

Площ:
350 м2

Тип:
Къща

Етаж:
0

* Натискайки бутона “Изпращане” Вие се съгласявате с нашите Общи условия и Политиката за защита на личните данни.

Още имоти

Продава

4-стаен

КОД: 711

€ 375,000 / € 2,435.06 на м2 /

Варна, област м-т Кабакум

Площ:
154 м2

Тип:
4-стаен

Продава

3-стаен

КОД: 710

€ 159,900 / € 2,422.73 на м2 /

Варна Младост

Площ:
66 м2

Тип:
3-стаен

Етаж:
2 от 8

Продава

Сгради

КОД: 709

При запитване

Варна Изгрев

Площ:
8500 м2

Тип:
Сгради

Продава

3-стаен

КОД: 708

€ 175,000 / € 2,397.26 на м2 /

Варна Бриз

Площ:
73 м2

Тип:
3-стаен

Етаж:
3 от 9

Продава

2-стаен

КОД: 707

€ 155,000 / € 2,980.77 на м2 /

Варна Техникумите

Площ:
52 м2

Тип:
2-стаен

Отдава под наем ЕКСКЛУЗИВНО

2-стаен

КОД: 706

€ 480 / € 8.73 на м2 /

Варна Възраждане

Площ:
55 м2

Тип:
2-стаен

Етаж:
6 от 7

Продава

2-стаен

КОД: 705

€ 125,000 / € 1,736.11 на м2 /

Варна Възраждане

Площ:
72 м2

Тип:
2-стаен

Продава

3-стаен

КОД: 699

€ 162,000 / € 1,670.10 на м2 /

Варна Виница

Площ:
97 м2

Тип:
3-стаен

Продава

Парцел

КОД: 698

€ 26,000 / € 74.29 на м2 /

Варна, област м-т Перчемлията

Площ:
350 м2

Тип:
Парцел

Продава

Къща

КОД: 697

€ 79,600 / € 1,206.06 на м2 /

Добрич, област

Площ:
66 м2

Тип:
Къща

Продава

Заведение

КОД: 695

€ 105,000 / € 1,567.16 на м2 /

Варна ЗК Тракия

Площ:
67 м2

Тип:
Заведение

Научи за новите имоти преди да бъдат публикувани!

* Натискайки бутона “Абонирай ме” Вие се съгласявате с нашите Общи условия и Политиката за защита на личните данни, като ще получавате имейлки от Нов Дом на посочения имейл адрес