+359 896 162 777 office@novvek.bg

гр. Варна, ул. София 3 Работно време: 9:00 - 18:00

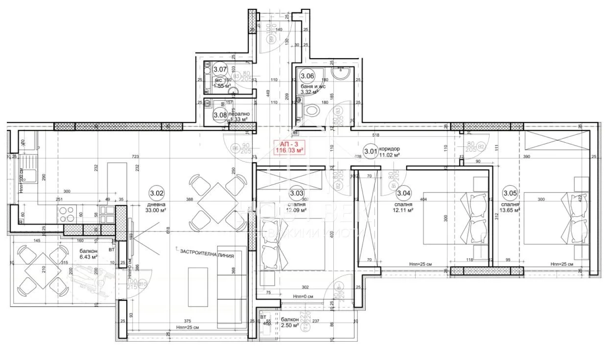
Продава 4-стаен КОД: 414

Четиристаен апартамент в кв. Възраждане

€ 218,000 / € 1,535.21 на м2 /

4-стаен Тип

Етаж 3 от 13 етажа

3 Спални

116 м2 Чиста площ

142 м2 Обща площ

€ 1,535.21 Цена м2

€ 218,000 Цена

  • Код: 414
  • Статус: Свободен
  • Град: Варна
  • Район: Възраждане
  • Строителство: Тухла
  • Година на строителство: 2028
  • Площ: 142 м2
  • Асаньор: ДА

Нов век недвижими имоти ви предлага отлична възможност за инвестиция или собствен дом в един от най-перспективните райони на гр. Варна. Апартаментът е част от новострояща се жилищна сграда с модерна визия, качествено изпълнение и отлично местоположение, реализирана от утвърден и доказан инвеститор с дългогодишен опит на пазара.

Характеристики на имота:

  • Тип: Четиристаен апартамент
  • Площ: 142,22 кв.м (чиста площ + общи части)
  • Етаж: 3 от 13
  • Разпределение: входно антре, дневна с кухненски бокс, три спални, баня с тоалетна, тоалетна, перално/килер, тераса
  • Изложение: Южно
  • Отопление: Подготвено за климатична система
  • Състояние: В процес на строителство, завършване по БДС (с възможност за довършване „до ключ“)

Предимства на имота:

  • Сграда от утвърден строител с редица успешно завършени проекти
  • Качествени материали и съвременни технологии на строителство
  • Перфектна локация с бърз достъп до центъра на Варна, главни пътни артерии, магазини, училища, детски градини и градски транспорт
  • Гъвкави схеми на плащане и възможност за банково кредитиране

Очакван срок на завършване: април 2028 година

Не пропускайте възможността да се сдобиете с функционален и модерен апартамент, съчетаващ качество, локация и сигурност от доказан строител.

За повече информация и огледи:

📞 Богдан Димитров – 0883/458889

Четиристаен апартамент в кв. Възраждане
Продава

Четиристаен апартамент в кв. Възраждане

4-стаен КОД: 414

€ 218,000 / € 1,535.21 на м2 /

Варна Възраждане

Площ:
142 м2

Тип:
4-стаен

Етаж:
3

* Натискайки бутона “Изпращане” Вие се съгласявате с нашите Общи условия и Политиката за защита на личните данни.

Още имоти

Продава

4-стаен

КОД: 711

€ 375,000 / € 2,435.06 на м2 /

Варна, област м-т Кабакум

Площ:
154 м2

Тип:
4-стаен

Продава

3-стаен

КОД: 710

€ 159,900 / € 2,422.73 на м2 /

Варна Младост

Площ:
66 м2

Тип:
3-стаен

Етаж:
2 от 8

Продава

Сгради

КОД: 709

При запитване

Варна Изгрев

Площ:
8500 м2

Тип:
Сгради

Продава

3-стаен

КОД: 708

€ 175,000 / € 2,397.26 на м2 /

Варна Бриз

Площ:
73 м2

Тип:
3-стаен

Етаж:
3 от 9

Продава

2-стаен

КОД: 707

€ 155,000 / € 2,980.77 на м2 /

Варна Техникумите

Площ:
52 м2

Тип:
2-стаен

Отдава под наем ЕКСКЛУЗИВНО

2-стаен

КОД: 706

€ 480 / € 8.73 на м2 /

Варна Възраждане

Площ:
55 м2

Тип:
2-стаен

Етаж:
6 от 7

Продава

2-стаен

КОД: 705

€ 125,000 / € 1,736.11 на м2 /

Варна Възраждане

Площ:
72 м2

Тип:
2-стаен

Продава

3-стаен

КОД: 699

€ 162,000 / € 1,670.10 на м2 /

Варна Виница

Площ:
97 м2

Тип:
3-стаен

Продава

Парцел

КОД: 698

€ 26,000 / € 74.29 на м2 /

Варна, област м-т Перчемлията

Площ:
350 м2

Тип:
Парцел

Продава

Къща

КОД: 697

€ 79,600 / € 1,206.06 на м2 /

Добрич, област

Площ:
66 м2

Тип:
Къща

Продава

Заведение

КОД: 695

€ 105,000 / € 1,567.16 на м2 /

Варна ЗК Тракия

Площ:
67 м2

Тип:
Заведение

Научи за новите имоти преди да бъдат публикувани!

* Натискайки бутона “Абонирай ме” Вие се съгласявате с нашите Общи условия и Политиката за защита на личните данни, като ще получавате имейлки от Нов Дом на посочения имейл адрес