+359 896 162 777 office@novvek.bg

гр. Варна, ул. София 3 Работно време: 9:00 - 18:00

Продава 3-стаен КОД: 394

3-стаен

€ 137,000 / € 1,601.78 на м2 /

3-стаен Тип

Етаж 6 от 8 етажа

2 Спални

70.32 м2 Чиста площ

85.53 м2 Обща площ

€ 1,601.78 Цена м2

€ 137,000 Цена

  • Код: 394
  • Статус: Свободен
  • Изложение: Югоизток, Юг
  • Град: Варна
  • Район: Погребите
  • Строителство: Тухла
  • Година на строителство: 2027
  • Площ: 85.53 м2

НОВО КАЧЕСТВЕНО СТРОИТЕЛСТВО! СГРАДА РАЗПОЛОЖЕНА В РАЙОН ПОГРЕБИ! ВЪЗМОЖНОСТ ЗА ИЗБОР НА РАЗЛИЧНИ ОБЕКТИ!

Агенция за недвижими имоти НОВ ВЕК ви представя нов проект, разположен в район Погреби, на 10 мин. пеша от центъра на гр. Варна и Катедралата. На 5 мин. пеша от училище, детска градина, медицински център, магазини и аптеки. Възможност за избор между различни етажи и изложения, паркоместа и подземен паркинг! Морска панорама, 24 часово видео наблюдение, контролиран достъп. Сградата е разположена в близост до центъра на Варна, с удобни транспортни връзки в целия град.

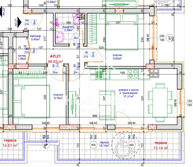
Имотът е с чиста жилищна площ от 70,32 кв.м и се състои от:

  • коридор/антре – 5,46 кв.м.;
  • дневна с кухня и трапезария – 18,31 кв.м.;
  • две спални по 10 кв.м. всяка;
  • една тераса – 13,14 кв.м.;
  • баня с тоалетна – 2,69 кв.м.

ПРЕДИМСТВА НА СГРАДАТА:

  • Функционални разпределения за максимален комфорт и уют на обитаване;
  • Светли и просторни стаи с правилни форми;
  • Панорамна гледка към Варненското езеро;
  • Качествено изпълнение до степен по завършеност по БДС, подготвено за довършителни дейности;
  • Възможност за обединение на апартаменти при нужда от по-голяма площ.

3-стаен
Продава

3-стаен

3-стаен КОД: 394

€ 137,000 / € 1,601.78 на м2 /

Варна Погребите

Площ:
85.53 м2

Тип:
3-стаен

Етаж:
6

* Натискайки бутона “Изпращане” Вие се съгласявате с нашите Общи условия и Политиката за защита на личните данни.

Още имоти

Отдава под наем ЕКСКЛУЗИВНО

3-стаен

КОД: 723

€ 500 / € 8.33 на м2 /

Варна Цветен

Площ:
60 м2

Тип:
3-стаен

Етаж:
1 от 8

Продава

Къща

КОД: 722

€ 698,000 / € 2,492.86 на м2 /

Варна Аспарухово

Площ:
280 м2

Тип:
Къща

Продава

2-стаен

КОД: 719

€ 128,500 / € 2,294.64 на м2 /

Варна Владиславово

Площ:
56 м2

Тип:
2-стаен

Етаж:
7 от 9

Продава ЕКСКЛУЗИВНО

3-стаен

КОД: 718

€ 125,000 / € 1,315.79 на м2 /

Варна

Площ:
95 м2

Тип:
3-стаен

Етаж:
5 от 9

Продава ЕКСКЛУЗИВНО

2-стаен

КОД: 717

€ 90,000 / € 1,363.64 на м2 /

Варна

Площ:
66 м2

Тип:
2-стаен

Етаж:
5 от 9

Продава

4-стаен

КОД: 711

€ 375,000 / € 2,435.06 на м2 /

Варна, област м-т Кабакум

Площ:
154 м2

Тип:
4-стаен

Продава

3-стаен

КОД: 710

€ 159,900 / € 2,422.73 на м2 /

Варна Младост

Площ:
66 м2

Тип:
3-стаен

Етаж:
2 от 8

Продава

Сгради

КОД: 709

При запитване

Варна Изгрев

Площ:
8500 м2

Тип:
Сгради

Продава

3-стаен

КОД: 708

€ 175,000 / € 2,397.26 на м2 /

Варна Бриз

Площ:
73 м2

Тип:
3-стаен

Етаж:
3 от 9

Продава

2-стаен

КОД: 707

€ 155,000 / € 2,980.77 на м2 /

Варна Техникумите

Площ:
52 м2

Тип:
2-стаен

Отдава под наем ЕКСКЛУЗИВНО

2-стаен

КОД: 706

€ 480 / € 8.73 на м2 /

Варна Възраждане

Площ:
55 м2

Тип:
2-стаен

Етаж:
6 от 7

Научи за новите имоти преди да бъдат публикувани!

* Натискайки бутона “Абонирай ме” Вие се съгласявате с нашите Общи условия и Политиката за защита на личните данни, като ще получавате имейлки от Нов Дом на посочения имейл адрес