
Varnenchik 4
Проектът е създаден за хора, които ценят комфорта и добрата организация на жилищното пространство. VARNENCHIK 4 включва апартаменти с различни квадратури и изложения, а при желание съществува възможност за обединяване на жилища в по-големи и просторни решения. Гъвкавите схеми на плащане гарантират индивидуален подход към всеки клиент.
-
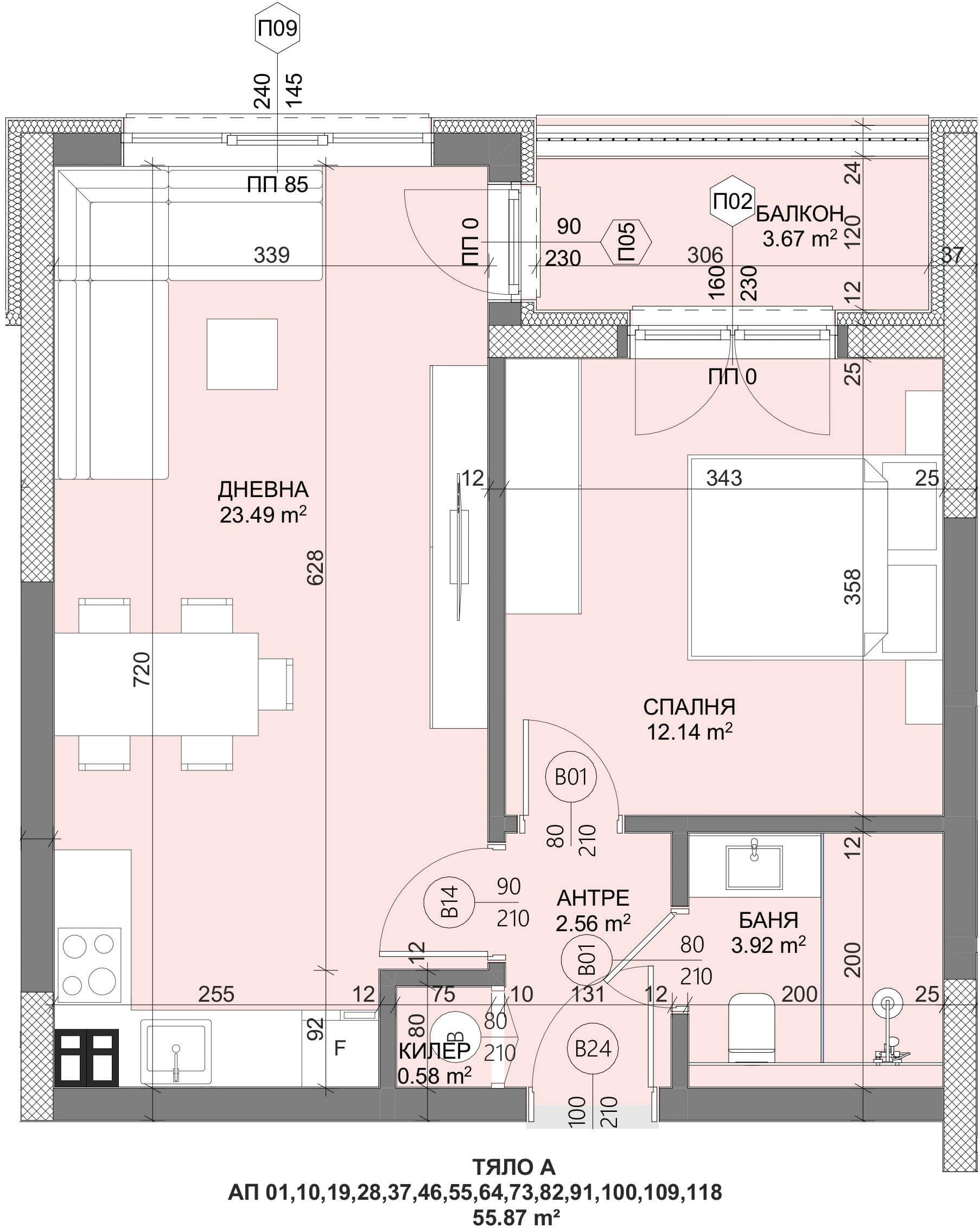
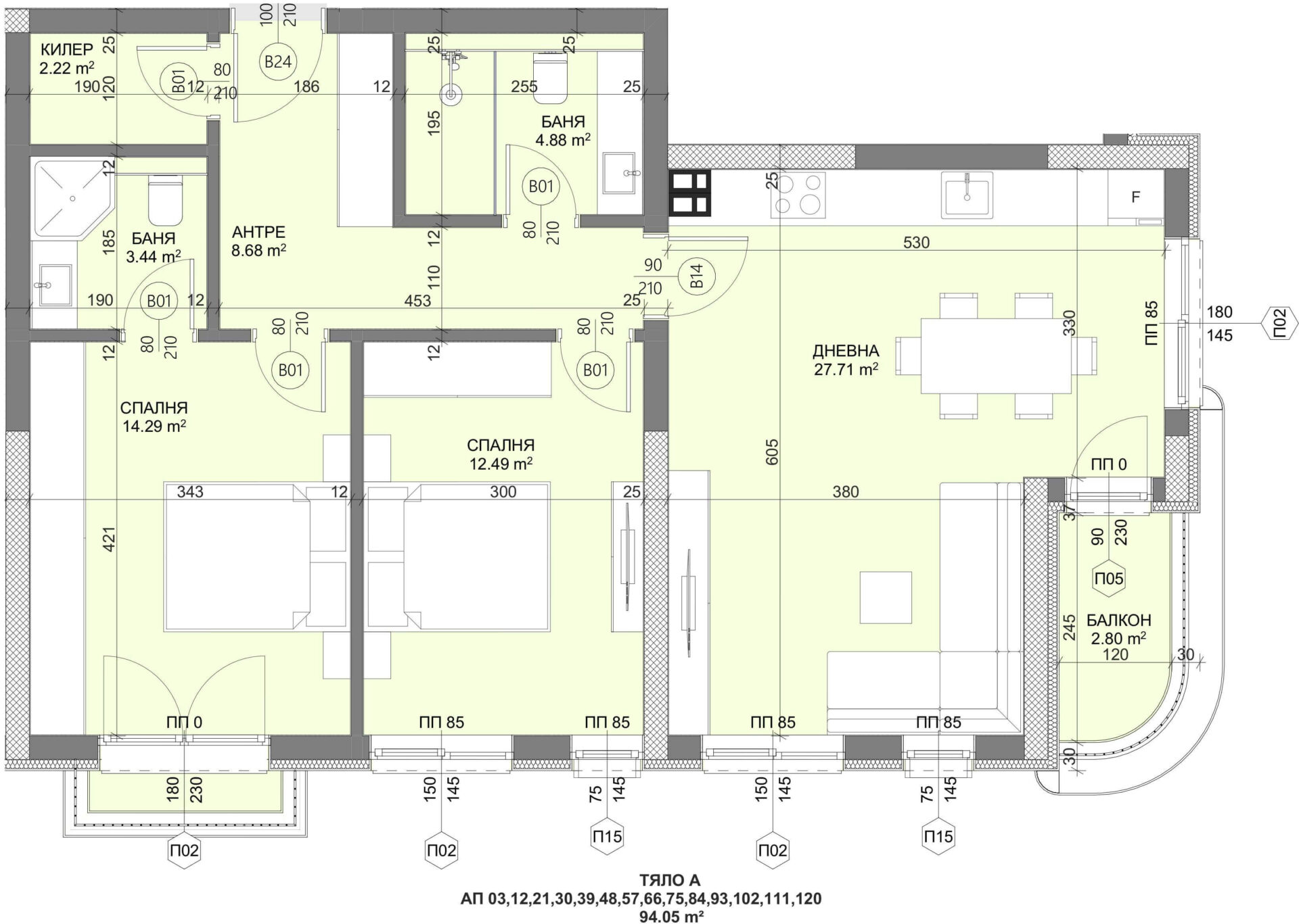
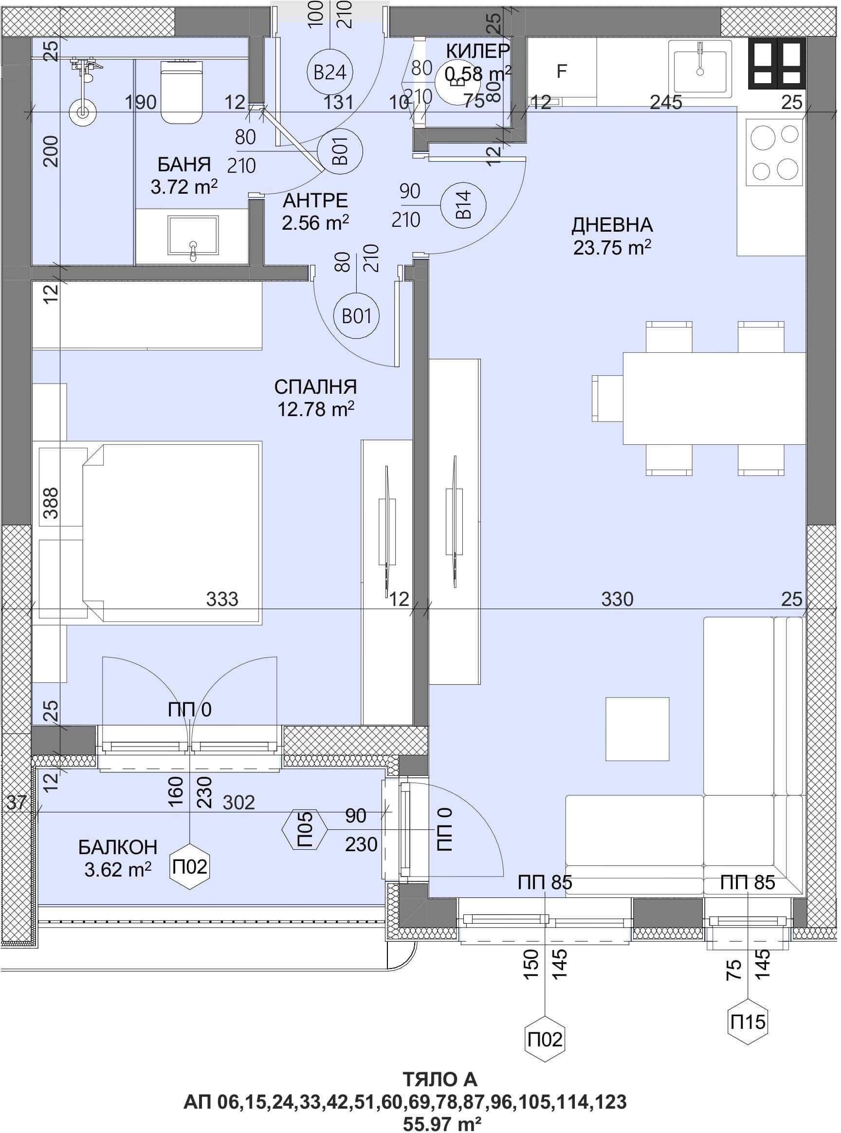
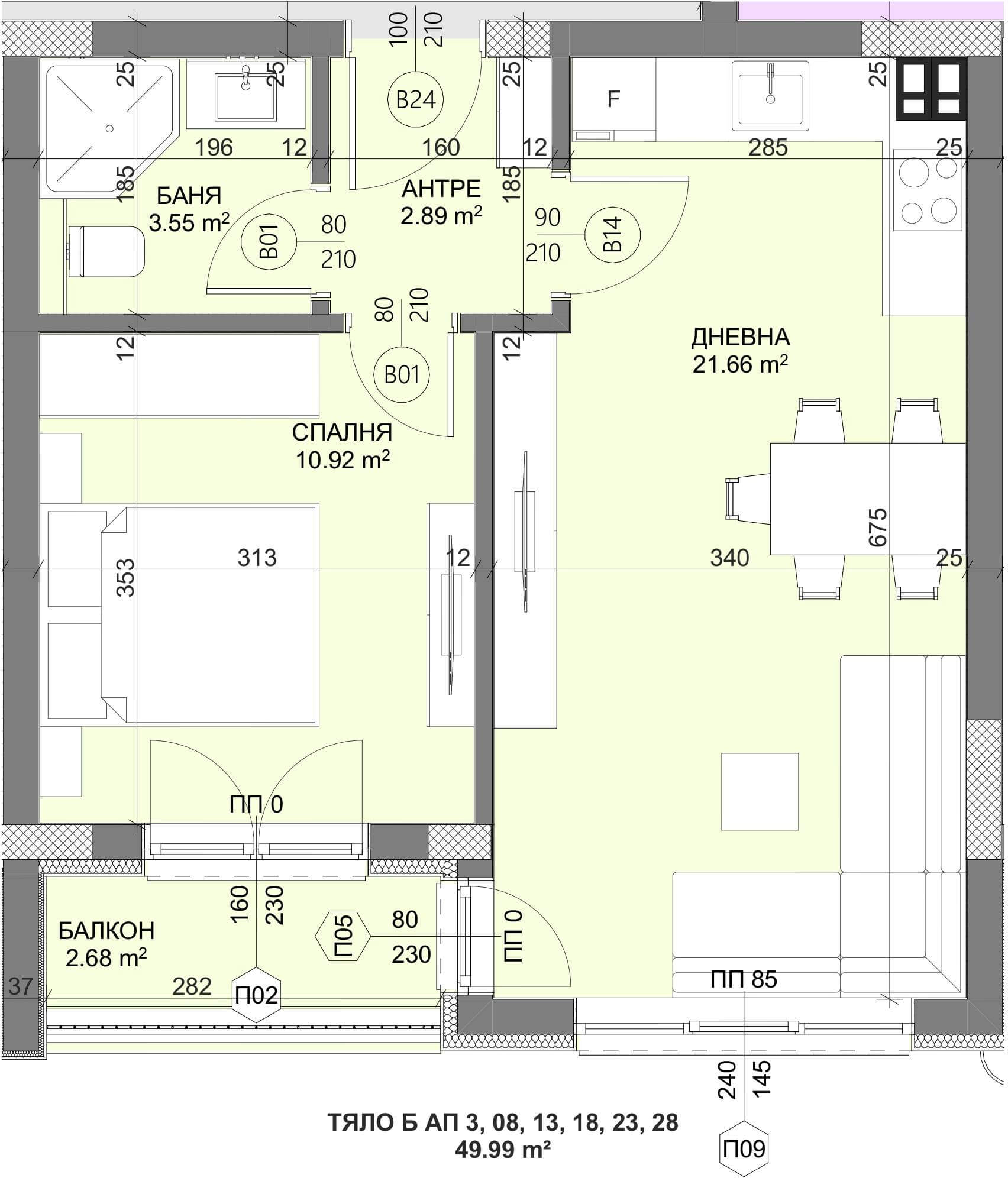
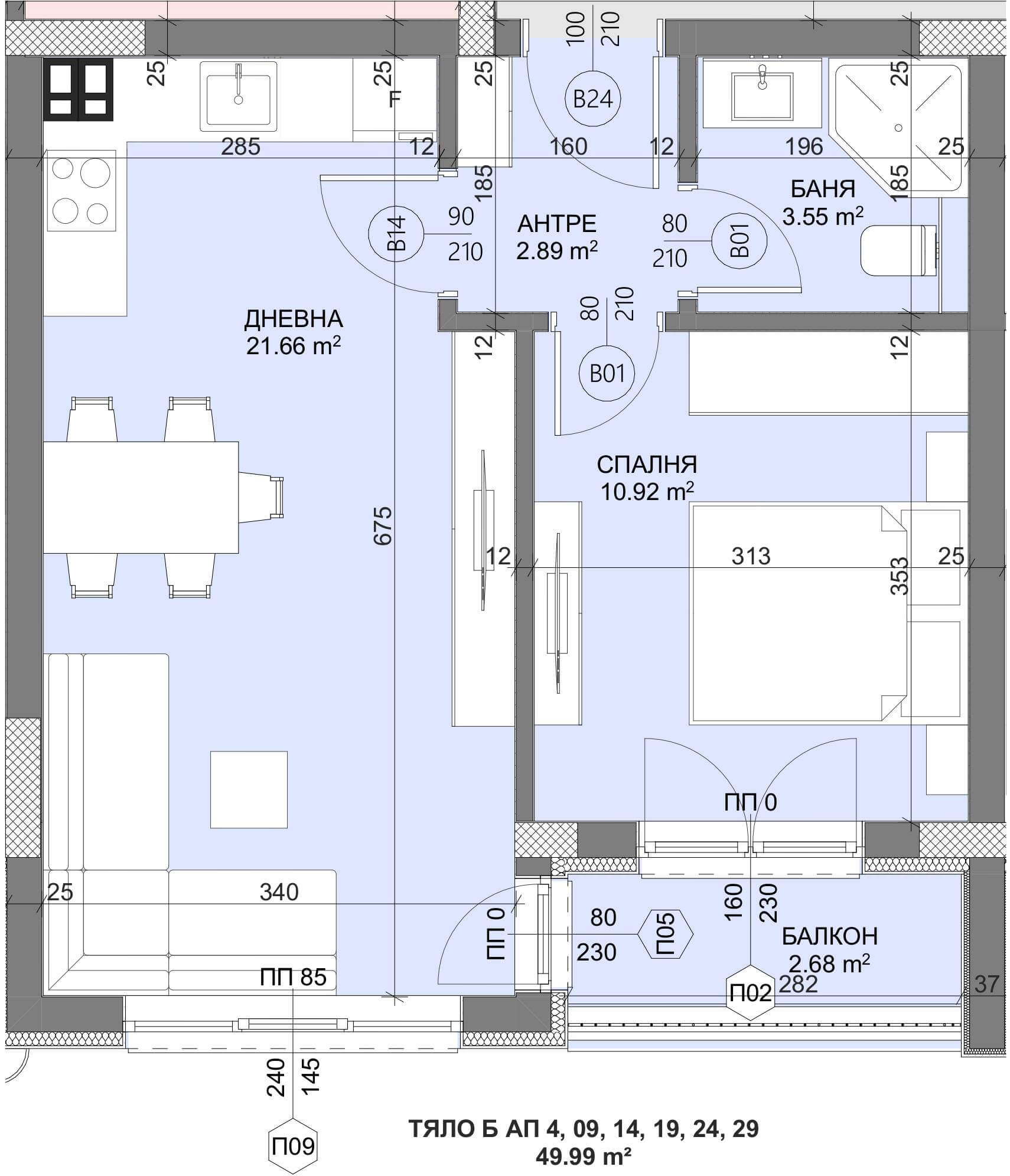
Удобни разпределения – функционалност и комфорт в ежедневието
-
Простор и светлина – правилни форми и оптимално естествено осветление
-
Панорамни гледки – към Варненското езеро и града
-
Надеждно строителство – изпълнение по стандарт БДС
-
Възможност за обединение – по-големи площи при нужда
-
Близост до зелени площи – зони за отдих и разходка с домашни любимци
-
Всичко на крачка разстояние – магазини, училища, банки, транспорт и спортни центрове
Сградата е позиционирана на удобно място под бул. „3-ти март“, осигуряващо лесен достъп до ключови точки в квартала и града. Новите собственици ще се радват на комфортна среда с наличието на търговски обекти, аптеки, пазари, училища, детски градини, фитнес зали и редовни линии на градския транспорт.
Предимства за клиентите:
-
Индивидуална консултация с интериорен дизайнер
-
Отстъпки при изработка на интериорен проект
-
Изгодни условия за довършване и обзавеждане
-
Възможност за „до ключ“ завършване с висококачествени материали




























































































































































Завършване „до ключ“
Изберете опция „до ключ“ и получете напълно завършен апартамент, готов за обитаване и обзавеждане.
Включено е:
-
Реализация по индивидуален проект
-
Полагане на настилки, боядисване и монтаж на интериорни врати
-
Професионален монтаж от сертифицирани специалисти
-
Преференциални условия за мебели и оборудване от партньори


Последни новини

Покупка на имот от ново строителство: Предимства и какво да внимавате
Ново строителство е все по-чест избор за купувачите – и с основание. Съвременните сгради предлагат модерни решения, енергийна ефективност и добри условия за живот. Но преди да подпишете договор – има няколко неща, които трябва да обмислите. 1....
29 април 2025
Инвестиция в недвижим имот: Какво да знаете преди да започнете
Инвестирането в недвижими имоти е един от най-предпочитаните начини за съхранение и умножаване на капитал. Но както всяка инвестиция, и тази крие рискове, които е добре да се познават. В тази статия ще разгледаме какво трябва да знаете,...
25 април 2025
Как да изберете подходящия имот: Практически съвети за купувача
Изборът на имот е едно от най-важните решения в живота на всеки човек. Без значение дали става въпрос за първо жилище, инвестиционен имот или ваканционен апартамент – процесът изисква внимание, подготовка и ясен план. В тази статия ще...
12 март 2025